Baugebiet Herrenberg Süd - gibt es bald einen neuen Staddteil? (Herrenberg)
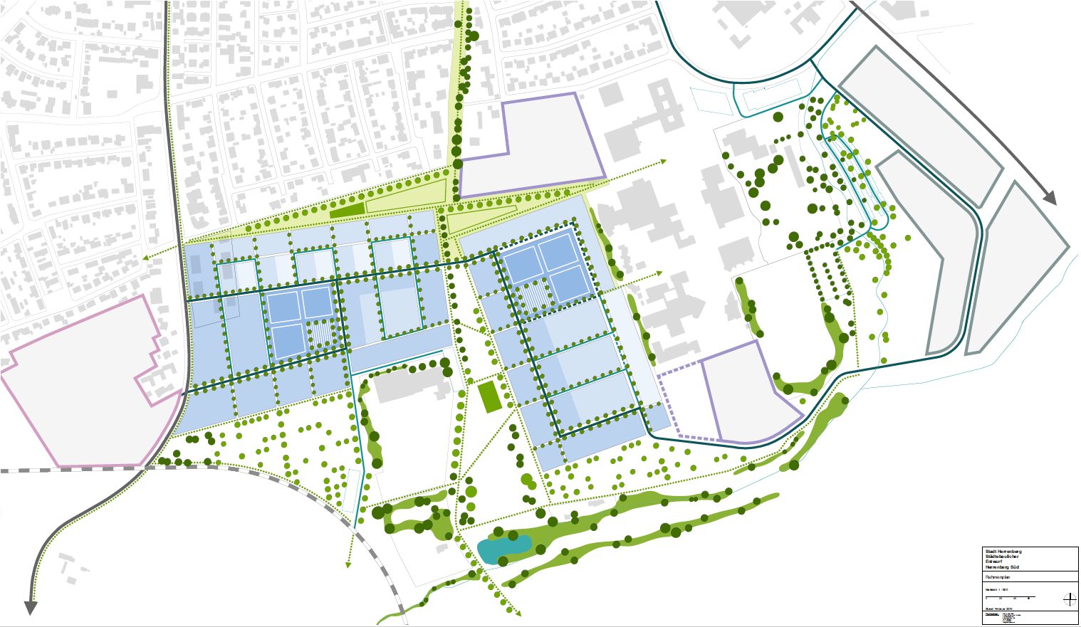
Wertermittlung im Untersuchungsbereich: Die Stadt Herrenberg beabsichtigt in den kommenden Jahren einen neuen Stadtteil im Süden von Herrenberg umzusetzen. Im Rahmen der Vorbereitenden Untersuchungen prüft die Stadt, ob für die Entwicklung des Baugebiets „Herrenberg Süd“ das Instrument der „Städtebaulichen Entwicklungsmaßnahme“ nach dem Baugesetzbuch angewendet werden kann. Ziel dieses Projekts war es, die angemessenen Aufkaufpreise für die vorhandenen Grundstücke und die späteren Verkaufspreise für die künftigen neugebildeten Grundstücke zu ermitteln, um die Finanzierbarkeit der Maßnahmen darzustellen.
Besonderheiten
Rechtliche Vorgaben: Zur Durchführung der städtebaulichen Entwicklungsmaßnahme ist es die Aufgabe der Stadt die Grundstücke im Entwicklungsbereich zu erwerben und nach ihrer Neuordnung und Erschließung wieder zu veräußern. Dem Erwerb und der Veräußerung sind bestimmte Wertverhältnisse zugrunde zu legen (siehe § 169 Abs. 1 Nr. 6 und Abs. 8 BauGB). Die Werte sind grundsätzlich für das einzelne Grundstück zu ermitteln. In der Regel werden sie jedoch, so wie hier, für Zonen ermittelt, in denen die den Wert der Grundstücke beeinflussenden Umstände im Wesentlichen übereinstimmen (Wertzonen). Die Bildung der Wertzonen erfolgt nach gebietsbezogenen Merkmalen wie Lage des Bereichs in der Gemeinde, gegebenenfalls topografische Merkmale, Art, Nutzung, Dichte und Zustand der Bebauung, planungsrechtlicher Zustand, Größe, Zuschnitt und Erschließung der Grundstücke. Auch die Entwicklungsziele und deren Umsetzung sowie die Ziele der Bauleitplanung sind wichtige Gesichtspunkte für die Bildung der Wertzonen.





Details
Leistungsbeschreibung
Ermittlung der zonalen Anfangswerte nach § 169 Abs. 1 Nr. 6 BauGB für acht Wertzonen mit unterschiedlichen Grundstücksqualitäten und Nutzungsarten zur Ableitung der angemessenen Aufkaufpreise zu zwei verschiedenen Wertermittlungsstichtagen
Ermittlung der zonalen Endwerte nach § 169 Abs. 8 BauGB für zwei künftige Wohngebiete und ein Gewerbe- bzw. Sondergebiet unter Berücksichtigung der derzeit geplanten Entwicklungsziele
Informationen zum Projekt
Stadt Herrenberg: ca. 33.000 Einwohner:innen
Lage: flächenmäßig größte Stadt im Landkreis Böblingen
Größe des geplanten Entwicklungsbereichs: ca. 57 ha
Künftige Wohnfläche: ca. 15 ha
künftige Gewerbe- bzw. Sondergebietsfläche: ca. 7,2 ha
Projektlaufzeit: 08/2018 - 10/2022
Auftraggeber: Stadt Herrenberg